Billedgalleri – klik på billedet for stor størrelse
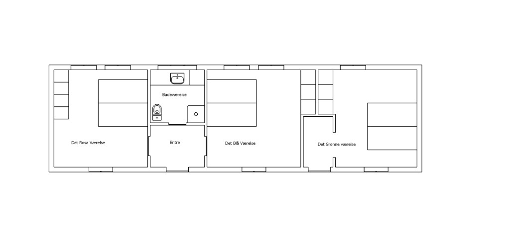
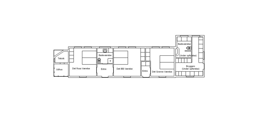
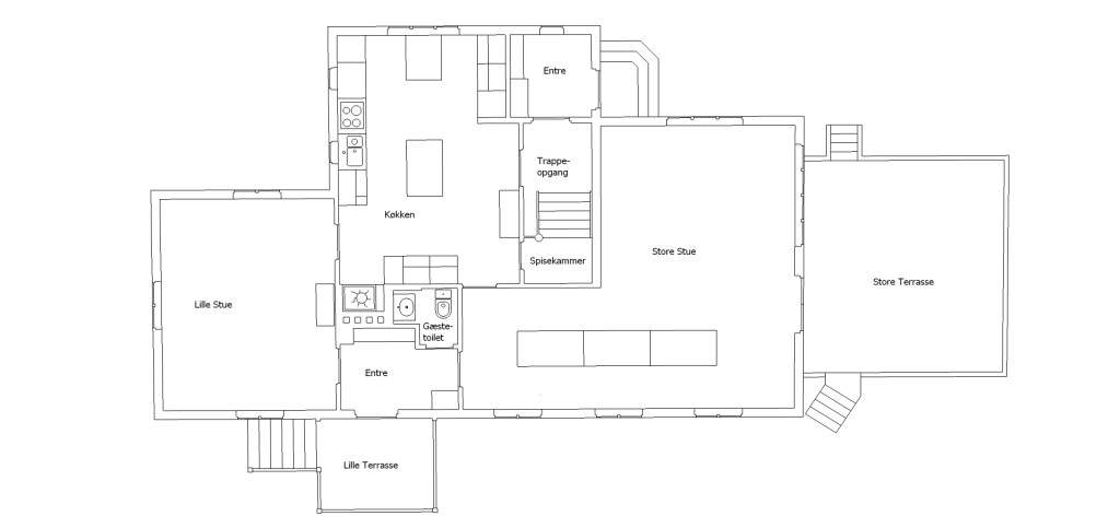
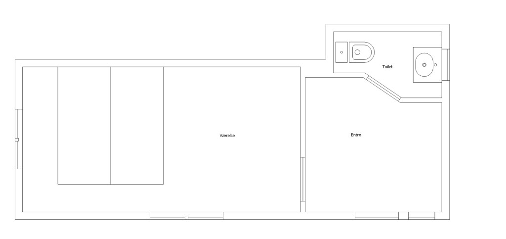
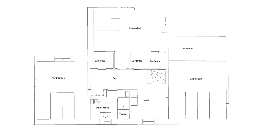
Husets vestsideAnkomst til SmålundaRotur på søenSavværksarbejderne. Karl Emil er nr. 2 fra venstreHusets sydgavl med Store TerrasseHisilicon BalongSommer på SmålundaVinter på Smålunda. Klik for større billede.Efterår på SmålundaDronebillede over Smålunda. Klik for større billede.Smålunda som det så ud i 1955Saunaen. Klik for større billdede.Kirsebærtræet blomstrerStjernehimmel over SmålundaFuldmåne over SmålundaInsyn från gräsmatta vid sjön mot bostadshusBålpladsen på SmålundaToilettet i BrøndhusetTag med cykeldræsiner på tur langs Flaten søDronebillede over SmålundaKarl Emil er nr. 2 fra venstreØstværelsetSydværelsetVinter igen på SmålundaIsbrud på Flaten søLuftfoto over SmålundaBådebroenRådyr på besøgDet er hvidt derudeSommer på SmålundaBådebroenGrønt i grøntKrokus pibler opBådebroenPlantegning af SaunaenPlantegning af BrøndhusetHuset set nede fra StaldenSmålundas bygningerSmålunda i eftermiddagssolSaunaværelsetHuset i det tidlige forår. Klik for større billede.BrøndhusetUdsigten fra SydværelsetSaunaenBrændekomfuret i køkkenetPlantegning af Husets stueetagePlantegning af Husets 1. salPlantegning af StaldenMorgentåge over Flaten søØstværelset i HusetVirserumåens udløb i Flaten søStaldenVores nye bådebroOpholdsområdet i den store stueSaunaen ved søenAnemonerne blomstrerHuset i det tidlige forårInde i SaunaenSmålunda set ude fra søenAnemoner ved bækkenSoveværelset i Brøndhuset